simplyarchitecture

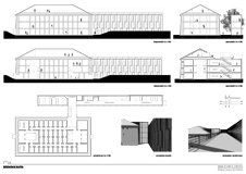
pläne:
 


 

 
 


assistenz
vorübungen
entwürfe
pavillon
museum
bodycheck
therme
polarstation
bibliothek
analysen
wohnbeton
stegreife

diplomarbeit
ausstellungen
exkursionen
eth master